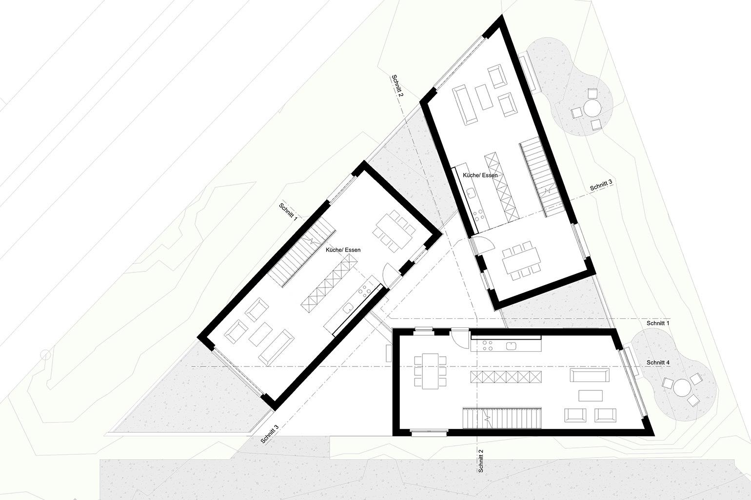
Wohnen am Chatzenbach

Projekt
Baustart noch offen

Foto: Drost + Dittli Architekten AG